East Front Elevation
South Side Elevation
West Rear Elevation
North Side Elevation
Long Section
Short Section
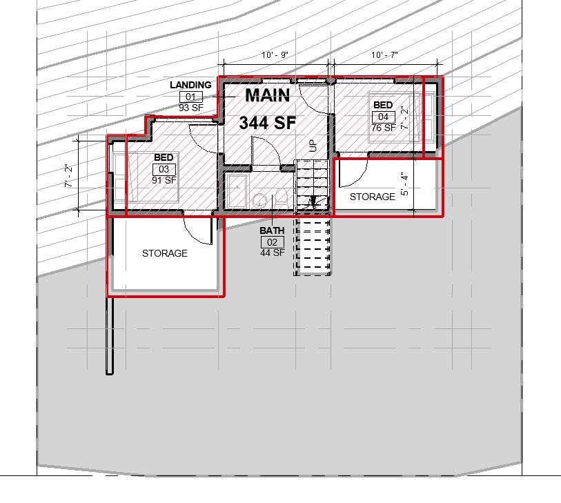
Lower Level 01
Main Level 02
Upper Level 01
Roof
East Front Elevation
South Side Elevation
West Rear Elevation
North Side Elevation
Long Section
Short Section